没有适用的220V单相电源变压器时,可以采取代用办法解决。电源变压器的代用办法主要是绕组的串并联,以解决包括电压、电流、功率、次级绕组不足等问题。
1.改变电源变压器的输出电压
当电源变压器的输出电压不符合要求时,可以通过将其次级绕组适当串联而得到新的输出电压。
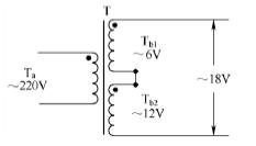
(1)次级绕组正向串联提高输出电压。所谓正向串联,是指变压器各绕组不同名端相连接,即:变压器各绕组绕向相同时(几乎所有变压器均如此),一绕组的始端与另一绕组的末端相连接;两绕组绕向相反时,两绕组的始端与始端(或末端与末端)相连接。图4-134示例中,电源变压器T原有两个次级绕组Tb1、Tb2输出电压分别为6V、12V,当将它们正向串联后,即可得到18V的新的输出电压,其最大输出电流等于Tb1、Tb2中额定输出电流较小的绕组的输出电流。

图4-134
(2)次级绕组反向串联降低输出电压。所谓反向串联,是指变压器各绕组同名端相连接。如图4-135所示,电源变压器T原有两个次级绕组Tb1、Tb2输出电压分别为3V、25V,当将它们反向串联后,即可得到22V的新的输出电压。反向串联两绕组的额定电压应有较大差距。

图4-135
(3)两个电源变压器次级绕组正向串联提高输出电压。如图4-136所示,电源变压器T1、T2输出电压均为12V,将它们的初级并联接入220V电源,它们的次级正向串联后即可获得24V的输出电压。连接中须注意识别各绕组的同名端,不能接错。

图4-136
2.提高电源变压器的输出电流
将电源变压器的次级绕组并联使用,可以提高变压器的输出电流。并联的各绕组其额定输出电压必须一致。
(1)同一变压器次级绕组的并联。如图4-137所示,电源变压器T具有两个输出电压12V、额定电流1A的次级绕组Tb1、Tb2,将它们同名端相接(始端与始端、末端与末端相接)并联后,即可将输出额定电流提高到2A。

图4-137
(2)不同变压器次级绕组的并联。如图4-138所示,电源变压器T1和T2分别具有输出电压15V、额定电流1.5A的次级绕组T1b、T2b,将T1与T2的初、次级均同名端相接并联后,即可将输出额定电流提高到3A。

图4-138
3.增大电源变压器的功率
当一个电源变压器的额定功率不能满足要求时,可以用两个或两个以上相同的电源变压器并联使用,以获得较大输出功率。例如,缺少100W的电源变压器,可以用两个60W、次级绕组均符合要求的变压器并联代用,如图4-139所示。两个较小功率变压器的效率比一个较大功率变压器的效率要低一些,因此,并联的两个变压器的功率之和,应稍大于需要的功率值。

图4-139
4.增加电源变压器的次级绕组
当电源变压器的次级绕组数量不足时,可以同时使用两个或更多电源变压器。图4-140示例中,两个电源变压器T1、T2同时使用,可以等效为一个次级多绕组变压器T。T1、T2所有的次级绕组都是等效变压器T的次级绕组。

图4-140
5.电源变压器各绕组同名端的识别
电源变压器的串并联使用,首要的是搞清楚各绕组的同名端,可用以下方法识别。
(1)交流电压判断法。首先用万用表交流电压挡测量出电源变压器各个次级绕组的空载电压,然后将两个次级绕组串联起来再测量其电压。如果测得的电压值为该两次级绕组空载电压之和,则其为正向串联,各绕组同名端如图4-141(a)所示。如果测得的电压值为该两次级绕组空载电压之差,则其为反向串联,各绕组同名端如图4-141(b)所示。
(2)直流脉冲判断法。检测电路如图4-142所示,将万用表置于直流电压最小挡,两表笔接于某一次级绕组两端。当快速按一下按钮SB时(相当于给变压器初级输入一直流脉冲),万用表表针应有摆动。当检测各绕组表针摆动方向一致时,说明红(或黑)表笔所接为同名端。

七、自制小型电源变压器
自制交流220V单相电源变压器,可分为设计计算和具体绕制两个阶段进行。
1.设计计算电源变压器
绕制电源变压器前,首先要根据所需要的电压、电流等,计算确定变压器的各项制作参数。
(1)确定电源变压器的功率。需要变压器次级绕组所提供的电压乘以电流就是该绕组的功率,将所有次级绕组的功率加起来,再乘以1.1(10%作为变压器的损耗),即为整个变压器的功率。例如:需要变压器次级提供6V(2A)和12V(0.5A)两组电源(见图4-143),则变压器功率为P = (6×2+12×0.5)×1.1≈20(W)。
(2)根据变压器的功率P来确定铁芯截面积S的大小。铁芯截面积的概念如图4-144所示,可按经验公式计算:
。例如:20W电源变压器需要铁芯截面积为
。

(3)计算每伏电压的圈数N0。经验公式为:
。例如:上述20W变压器的每伏圈数
圈。
(4)计算初、次级各绕组的圈数。初级绕组圈数用N0乘以220即可。次级绕组圈数用N0乘以电压再增加10%以弥补损耗。上例中(见图4-143),初级绕组L1为8×220 = 1760圈;次级绕组L2为8×6×1.1≈53圈;次级绕组L3为8×12×1.1≈106圈。
(5)根据各绕组电流选取漆包线。上例中,初级绕组L1的电流I1 =20W220V≈0.09A,考虑到留有一定的余量,可选用直径0.23mm(34号)漆包线。次级绕组L2的电流I2 = 2A,可选用直径1.04mm(19号)漆包线。次级绕组L3的电流I3 = 0.5A,可选用直径0.51mm(25号)漆包线。
2.具体制作电源变压器
设计计算完成后,即可按以下步骤动手制作。
(1)按图4-145所示,用绝缘纸板制作一个线包框架,其下面侧板两侧分别开有初、次级绕组的引线孔。
(2)绕初级绕组。将漆包线线头与引出线焊牢,焊点等裸露部分用绝缘纸包裹住,引出线从线包框架侧板的引线孔中穿出,如图4-146所示。初级绕组绕好后,其线尾也像线头一样连接好引出线。

(3)在初级绕组外面包裹一层绝缘纸,如图4-147所示,然后绕上次级绕组。由于次级绕组所用漆包线较粗,可以直接作为引出线。

图4-147
(4)所有绕组都绕制完成后,最外层应用绝缘纸包裹,并在两侧分别标明绕组的电压和电流,如图4-148所示。

图4-148
(5)接下来插入硅钢片铁芯。应采用交错插装法,即将“E”形硅钢片上下交错插入线包框架内,如图4-149所示。所有“E”形硅钢片插完后,再将“I”形硅钢片插入。
(6)在铁芯外面装上铁皮制成的夹壳,电源变压器便制作好了,图4-150为其外形。再经过浸漆、烘干等绝缘处理,这个电源变压器就可以使用了。

欢迎到